En los últimos años, la demanda del mercado de logística de la cadena de frío ha aumentado significativamente y la escala se está expandiendo constantemente. La mejora continua del entorno empresarial ha promovido el rápido desarrollo de este sector. En este contexto, podemos observar que la construcción de la base logística de la cadena de frío, así como las instalaciones de la cadena de frío en las áreas de producción y venta, avanza de manera sostenida.

También se están aplicando y promoviendo tecnologías como la digitalización, la normalización y la ecologización. Las nuevas tecnologías de refrigeración de conservación, conservación de energía y protección del medio ambiente están siendo gradualmente ampliamente utilizadas. Con la continua expansión de los actores del mercado, las empresas de logística de la cadena de frío acelerar el crecimiento, la tendencia de desarrollo de la red es evidente, la capacidad de integración de recursos y la competitividad del mercado también está aumentando.

Construcción de una moderna plataforma de comercio de cadena de frío
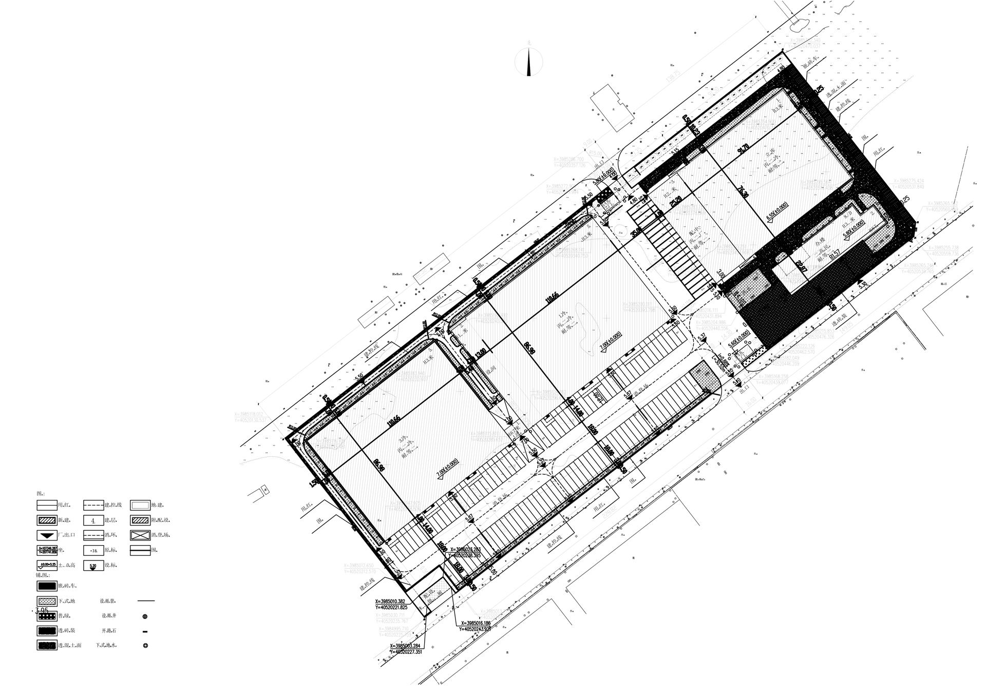
El centro comercial de procesamiento de productos acuáticos del noreste de Asia y el proyecto de plataforma internacional de comercio de cadena de frío fresco se encuentra en la hermosa ciudad costera de Qingdao, zona de desarrollo económico y tecnológico de la costa oeste, y en el sexto puerto más grande del mundo, el puerto de Qingdao.

Con una superficie de 66.036 metros cuadrados, la capacidad total de almacenamiento en frío es de 150.000 toneladas, el área total de construcción es de 154.000 metros cuadrados, y la inversión total es de 1,5 millones de yuanes.

Una vez finalizado, el proyecto se convertirá en una moderna base logística de cadena de frío de alta gama, plataforma de servicios logísticos y centro de comercio. El noroeste, el norte de China y el noreste de China se unen al doble ciclo del comercio internacional y el comercio interno. «Radiating East China, North China, Beijing-Tianjin-Hebei» (en inglés).

Ahorro de energía y reducción del consumo, mira el diseño de la pared exterior de almacenamiento en frío
El proyecto construirá tres naves frigorífic, incluyendo dos naves de varios pisos y una nave inteligente mecanizada. Con una capacidad total de almacenamiento de 620.000 metros cuadrados y una capacidad de congelación rápida diaria de 50 toneladas/día, como Qingdao Northeast Asia Aquatic products Trade distribution Center, proporciona a los clientes servicios de almacenamiento, transporte de la cadena de frío y plataforma comercial.

La pared exterior del edificio utiliza una gran zona de gris y blanco con una pequeña cantidad de líneas azules, dando a la gente un efecto visual simple y moderno. La combinación perfecta de gris y azul tranquilo y sobrio con un sentido de la tecnología infuntodo el edificio con un nuevo elemento de moda y un sentido de jerarquía.

En este proyecto, el panel interior de la pared y el techo de la biblioteca estéautomática están hechos de panel sándwich Wiskind COLORSPAR®. Su material básico adopta una nueva generación de espuma de poliuretano PIR pentano B1 como material de núcleo duro para asegurar el sellado y el efecto de aislamiento térmico del sistema de almacenamiento en frío.

El compuesto con revestimiento de metal puede mejorar aún más su propiedad retarde la llama. En el proceso de uso, la placa no es fácil de criar bacterias y resistencia a la corrosión, más adecuado para la cadena de frío ambiente de almacenamiento.

Además, un diseño de interfaz razonable puede mejorar aún más el aislamiento térmico y las propiedades mecánicas. Debido a su excelente aislamiento térmico, puede reducir el consumo de energía y el costo, y reducir las emisiones de dióxido de carbono.

Al mismo tiempo, su emisión de compuestos orgánicos volátiles (COV) es baja, tiene las características de amigable con el medio ambiente y sostenible, muy adecuado para proyectos de almacenamiento en frío de edificios industriales.

Conclusión
En línea con el principio de "desarrollo común con los clientes upstream y downstream de la cadena de suministro ", Zhongqing Daleng (Qingdao) Logistics Co., LTD ha creado con éxito este" moderno, verde e inteligente "integrado parque logístico de cadena de frío que integra el almacenamiento, procesamiento y exhibición de carne y productos acuáticos. Aquí no sólo se expresa el espacio de desarrollo tridimensional y multifuncional de las empresas de almacenamiento y logística, sino que también se convierte en un nuevo proyecto de referencia de la cadena nacional de logística portuaria de frío.

Wiskind también continuará haciendo contribuciones positivas al desarrollo sostenible de la industria de la cadena de frío mediante el empoderamiento de la industria manufacturera de China con nuevos materiales verdes y de ahorro de energía.

