近年来,随着5G、人工智能等技术的迅速发展,半导体行业的重要性日益凸显。而硅材料作为半导体制造的核心材料,也受到了更多的关注。中国硅材料生产也随着半导体行业的快速发展而进入了一个新的阶段。并且随着国家大基金的介入,以及一系列产业政策推进半导体关键设备和材料的国产化进程,大尺寸半导体硅片的国产替代开始加速,国内企业积极布局8英寸和12英寸硅片的产能。

有研半导体硅材料股份公司作为国内最早从事半导体硅材料研究的企业之一,公司高度重视创新,现已建立了成熟的研发体系,以用户需求为导向,积极推进研发技术产业化和市场应用。

公司的集成电路用大尺寸硅材料规模化生产项目,实现了以8英寸为主的硅抛光片、大尺寸刻蚀设备用硅材料的规模化生产,并布局12英寸硅片项目。有力支持了中国集成电路产业的发展,同时产品远销美国、日本、韩国、中国台湾等多个地区,在国内外市场享有良好的知名度和影响力。

“山东有研集成电路用大尺寸硅材料规模化生产项目”落户德州经济技术开发区,总投资80亿元,位列山东省2019年省重点项目名单榜首,是迄今为止德州投资额最大的集成电路硅材料产业项目。

其中一期建设年产276万片8英寸硅片生产线,二期建设年产360万片12英寸硅片生产线。项目瞄准我国重大战略产业短板,填补山东省内相关领域空白,对全市发展新一代信息技术产业,打造战略性新兴特色产业集群意义重大。

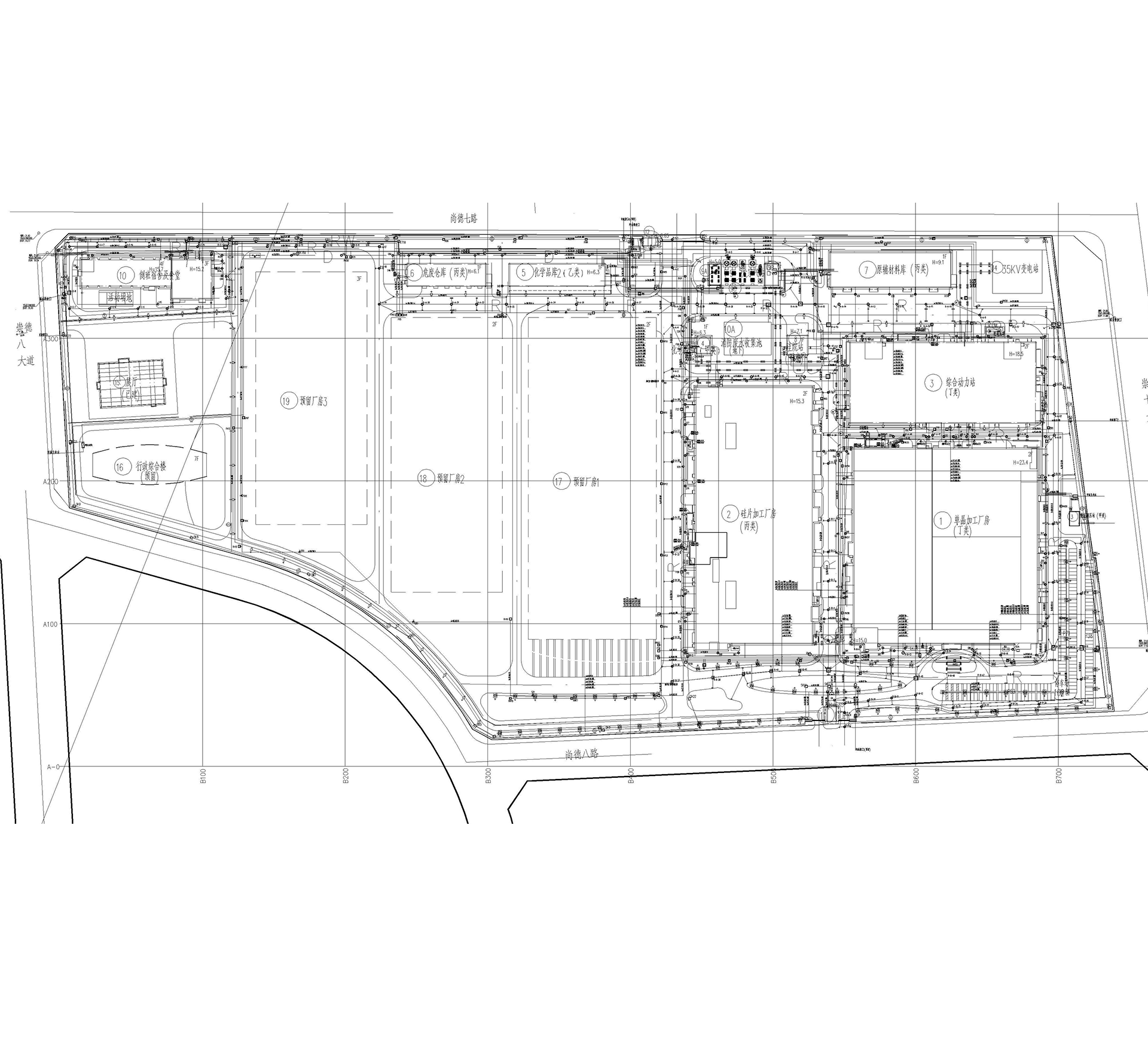
项目一期占地326亩,建筑面积22万平方米,建设单晶加工厂房、硅片加工厂房、综合动力站等。

三个单体的建筑外墙皆采用万事达的夹芯板墙面系统——丽彩鼎®夹芯板,这款夹芯板采用交错式双支撑企口,聚氨酯封边,提供了绝佳的气密水密、保温性能。

其中万事达的新一代3D立体垫片,提升了钢板在螺钉处承载力和企口支撑的强度,赋予了外墙超强的抗风性能。

板材通过工厂预制,到现场快速安装,实现了装配式安装的高效与精确。大大提高了施工速度,缩短了施工周期。并且还可以大幅度降低建筑垃圾和污染物的产生,符合可持续发展的理念。

外墙设计除却实用性,其美观性也十分重要。该项目的外墙采用了深灰、浅灰和白色,构成了富有层次感的外观。白色占据了大部分的面积,浅灰色穿插其中,给人带来清爽的现代感和科技感。而深灰色的加入又增添了严谨和稳重的氛围。

整体的色彩组合,让工业建筑突出专业性和现代感的同时,也为我们带来了视觉上的享受。

随着新能源汽车、人工智能、物联网等新兴产业的逐渐崛起,作为半导体硅片行业新的需求增长点,也为半导体硅片企业发展提供了巨大的市场空间。随着应用领域不断扩大,我国半导体硅片行业也将拥有广阔的发展前景。
而万事达作为专业的金属围护制造商和服务商,也将不断进行技术升级和工艺突破,秉承科技与创新赋能绿色建筑的使命,探索出更加智能化、绿色化和可持续化的建筑围护解决方案,助力高新技术产业稳步发展!

